
MIL-PRF-94/5J
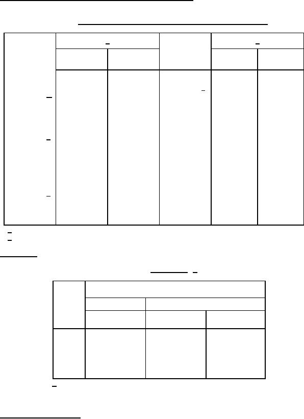
3.3 Nominal total resistance and rated continuous working voltages. The nominal total resistance and rated
continuous working voltage (RCWV) shall be as specified in table I.
TABLE I. Nominal total resistance and rated continuous working voltage.
RCWV 1/ (volts)
RCWV 1/ (volts)
Nominal total
Nominal total
resistance
resistance
Tapers
Tapers
(in ohms)
(in megohms)
Taper A
Taper A
C and F
C and F
445
50
10
316
0.10
100
14
500
350
10
0.15
2/
500
150
17
350
12
0.20
500
200
20
350
2/
0.25
500
250
22
350
16
0.35
500
350
26
350
18
0.50
500
500
32
350
23
0.75
500
750
39
350
28
1.00
500
1,000
45
350
32
1.50
2/
500
55
1,500
350
39
2.00
63.3
500
2,000
350
45
2.50
500
71
2,500
350
50
3.50
500
84
3,500
350
60
5.00
100
5,000
71
122
7,500
87
141
10,000
100
173
15,000
123
2/
200
20,000
141
224
25,000
160
264
35,000
187
316
50,000
224
387
75,000
249
1/ Rated for continuous working voltage at 70OC.
2/ For replacement purposes only. Not for new design.
3.4 Shaft length. The length of the operating shaft shall be in accordance with table II.
TABLE II Shaft length. 1/
Length of shafts from mounting surface of resistors,
(nominal)
Flatted
Slotted
Symbol
Bushings N and S
Bushings N and S
Bushings L and T
(inches ±0.313)
(inches ±0.313)
(inches ±0.313)
A
0.625
B
0.500
D
0.875
0.875
0.875
G
1.250
N
1.500
J
2.000
K
2.500
1/
For resistors with panel seals, the mounting surface shall be
considered the metal face of the panel seal when the seal is firmly
seated against the resistor body.
3.5 Mounting and locking nuts. The mounting nut shall be 0.09375 inches thick and measure 0.500 inches across
the hexagonal flats. The locking nut shall be within the limits 0.151 inches and 0.234 inches thick and shall measure
0.500 inches across the hexagonal flats. The thread size shall be 0.375-32 NEF-2B.
4
For Parts Inquires call Parts Hangar, Inc (727) 493-0744
© Copyright 2015 Integrated Publishing, Inc.
A Service Disabled Veteran Owned Small Business