
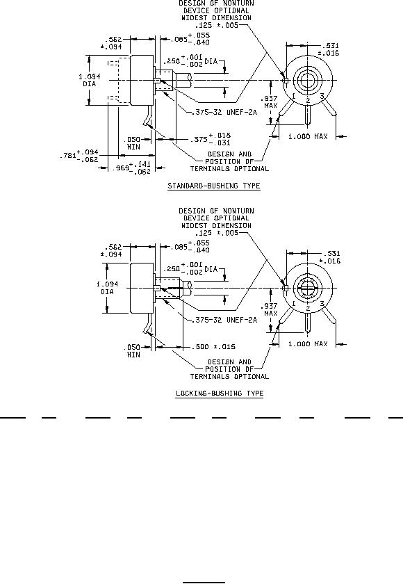
MIL-PRF-94/5J
mm
Inches
mm
Inches
mm
Inches
mm
Inches
mm
Inches
.001
0.03
.045
1.14
.085
2.16
.250
6.35
.781
19.84
.002
0.05
.047
1.19
094
2.39
.375
9.53
.828
21.03
.005
0.13
.050
1.27
.109
2.77
.500
12.70
.937
23.80
.015
0.38
.055
1.40
.125
3.18
531
13.49
.969
24.61
.016
0.41
.057
1.45
.141
3.58
.562
14.27
1.000
25.40
.031
0.79
.062
1.57
.172
4.37
.593
15.06
1.031
26.19
.040
1.02
.063
1.60
.216
5.49
.609
15.47
1.094
27.79
NOTES:
1.
Dimensions are in inches. Metric equivalents are given for general information.
Unless otherwise specified, tolerance is ±0.062 inch (1.57mm).
2.
FIGURE 1. Style RV4 Continued.
3
For Parts Inquires call Parts Hangar, Inc (727) 493-0744
© Copyright 2015 Integrated Publishing, Inc.
A Service Disabled Veteran Owned Small Business