
MIL-PRF-94/2E
2.3 Order of precedence. In event of a conflict between the text of this document and the references cited herein
(except for related associated specifications, specification sheets, or MS sheets), the text of this document takes
precedence. Nothing in this document, however, supersedes applicable laws and regulations unless a specific
exemption has been obtained.
3. REQUIREMENTS
3.1 General. The requirements for acquiring the product described herein shall consist of this document and
3.2 Interface and physical dimensions. The resistors shall meet the interface and physical dimensions specified in
figure 1.
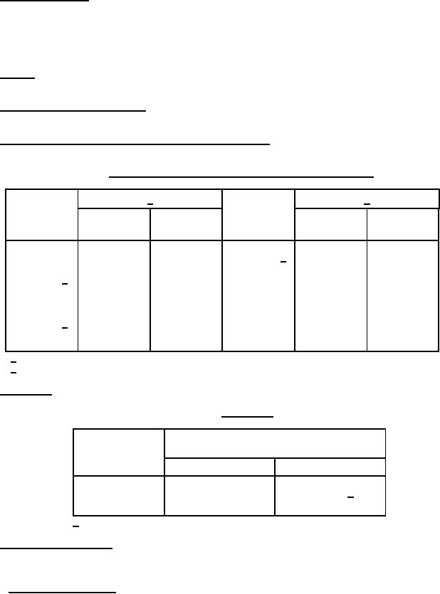
3.3 Nominal total resistance and rated continuous working voltages. The nominal total resistance and rated
continuous working voltage (RCWV) shall be as specified in table I.
TABLE I. Nominal total resistance and rated continuous working voltage.
RCWV 1/ (volts)
RCWV 1/ (volts)
Nominal total
Nominal total
resistance
resistance
Tapers
Tapers
Taper A
Taper A
(in ohms)
(in megohms)
C and F
C and F
250
11
224
160
0.10
16
2/
316
500
200
0.20
22
350
1,000
16
200
0.25
2,000 2/
31
350
200
22
0.50
35
350
200
2,500
25
1.00
50
350
5,000
36
200
2.00
71
350
10,000
200
50
2.50
20,000 2/
100
70
112
25,000
80
158
50,000
112
1/ Rated for continuous working voltage at 70OC.
2/ For replacement purposes only. Not for new design.
3.4 Shaft length. The length of the operating shall be in accordance with table II.
TABLE II Shaft length.
Length of shafts from mounting surface at
resistors Nominal (in inches ±0.03125)
Symbol
Bushing N
Bushing L
B
0.500
1/
D
0.875
0.875
L
0.375
1/ For replacement purposes only, not for new design.
3.5 Mounting and locking nuts. The mounting nut shall be 0.09375 inches thick and measure 0.375 inches across
the hexagonal flats. The locking nut shall be 0.125 inches thick and shall measure 0.375 inches across the
hexagonal flats. The thread size shall be 0.25-32 NEF-2B.
3.5.1 Internal tooth lockwasher. Internal tooth lockwasher of suitable size shall be applied.
2
For Parts Inquires call Parts Hangar, Inc (727) 493-0744
© Copyright 2015 Integrated Publishing, Inc.
A Service Disabled Veteran Owned Small Business