
MIL-PRF-39015E
APPENDIX A
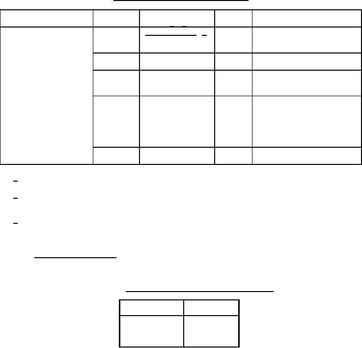
TABLE A-I. Qualification sample size and test routine Continued.
Extension of qualification
Resistance
Terminal type tested
Quantity
Test routine
value
1/ 2/
Type submitted 3/
Group I, IA. All samples then
Highest
P(or Y)
24
divided equally for group III
Lowest
P(or Y)
24
through group VI inclusive.
Highest
P(or Y)
6
Highest
W (or X)
6
Group II.
L, P, W, X, and Y type
Group I, IA. All samples then
over a range of
Highest
L
24
divided equally for group III
resistance.
Highest
W (or Y)
24
through group VI inclusive.
17
L
Highest
17
P(or Y)
Highest
17
W(or X)
Highest
Group I, IA and group VII.
17
L
Lowest
17
P(or Y)
Lowest
17
W(or X)
Lowest
Group I, IA and group VIII,
3
(any value, any terminal type).
1/ Terminal type "X" will qualify "W" and conversely "W" will qualify "X".
2/ Terminal type "P" will qualify "Y" and conversely "Y" will qualify "P" by subjecting six sample units of
any resistance value to visual and mechanical examination.
3/ L, P, W, X, or Y.
A.4. EXTENT OF QUALIFICATION
A.4.1 Extension of qualification. Qualification of a particular style and resistance value qualify a range
of resistance values from the smallest value to the highest value inspected. Terminal "X" will qualify "W"
and "W" will qualify "X". The extent of qualification between FR levels is as specified in table A-II.
TABLE A-II. Extent of qualification between product levels.
Product level
Product
designator
level
R, P, M, C
S
P, M, C
R
M, C
P
C
M
39
For Parts Inquires call Parts Hangar, Inc (727) 493-0744
© Copyright 2015 Integrated Publishing, Inc.
A Service Disabled Veteran Owned Small Business