
MIL-PRF-22/8D
Inches
mm
Inches
mm
Inches
mm
Inches
mm
Inches
mm
Inches
mm
.002
0.05
.031
0.79
.094
2.39
.250
6.35
1.780
45.21
3.190
81.03
.005
0.13
.047
1.19
.188
4.78
.375
9.53
2.190
56.63
.015
0.38
.063
1.60
.219
5.56
.500
12.70
2.690
68.33
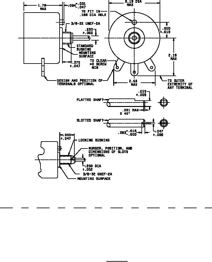
NOTES:
1. Dimensions are in inches.
2. Tolerance is ±.015 unless other wise specified.
3. Metric equivalents are given for general information.
FIGURE 1. Style RP25
3
For Parts Inquires call Parts Hangar, Inc (727) 493-0744
© Copyright 2015 Integrated Publishing, Inc.
A Service Disabled Veteran Owned Small Business